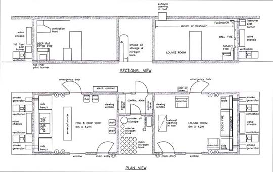
This training facility incorporates 2 burn rooms, a control room and areas for the valve trains, ventilation systems and support services required for the operation of the fire simulator.


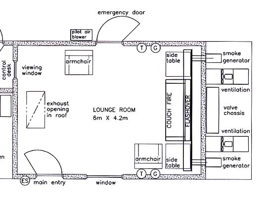
One burn room is set up as a lounge room. It has "furniture" replicating a couch, arm chairs and side tables.

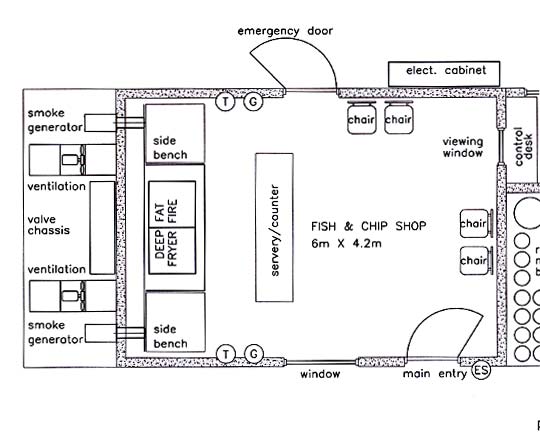
The other burn room is set up as a fish and chip shop with "furniture" to replicate a deep fat fryer and counter.
 
The control room has a control panel for each burn room. It has a window and is positioned so that the operator can oversee training exercises.
 
The fire simulator uses LPG as the fuel source. The valves that control the fires are located on the outside wall behind the simulators.
 
Other services besides LPG are required. The smoke generators require smoke oil and nitrogen. Compressed air, combustion air and ventilation are also required.
 
The lounge room fire simulation consists of a 3 stage couch fire
 
The fire can then spread from the couch to the wall behind
 
Finally, a flash over effect engulfs the entire ceiling area to simulate the accumulation of hot, partially combusted gases at ceiling level.
 
To supplement the fire simulation, the burn room is equipped with 2 smoke generators that reduce visibility during the training exercise.
 
The combined effects of fire and smoke provide good realism for the training scenario.
 
The Fish and Chip fire simulation consists of a 4 stage fire on a dual pan deep fat fryer.
 
This fire size varies from a moderate to large size.
 
The fire can spread from the fryer pans to the floor simulating an oil spillage on the floor.

Finally, a fire ball can be generated. This simulates the effect of applying a hose stream of water to a pan of boiling oil.
 
There are a number of safety systems employed which enable the fire simulators to be operated in a safe training environment. Firstly, each burn room has a dedicated ventilation system that operates though out training exercises.

The ventilation system prevents the accumulation of partially combusted gas products.

The ventilation system is backed up by a monitoring system that continuously checks for gas concentrations in a burn room. Elevated concentrations cause an increase in ventilation rate leading to the shutdown of the fire simulators if the condition persists.

The temperature of the burn rooms is monitored at 1200mm and 2100mm above floor height. Increasing the temperature beyond a preset threshold causes the ventilation rate to increase and if the temperature goes beyond an upper point the fire simulators are shut down.

Operators can shut down the entire system at any time, either from the control desk or from emergency stop push buttons located at the doorways.

The burn room building is constructed from precast concrete panels. However, in the areas where flame impingement can occur, the concrete wall and ceiling panels are protected by steel plates.

Login

Top